Cottage at 566 Laurel Creek Road, Single Family residence
Renovation/ New Construction
$250,000 Project, August 2024 expected Completion
Conversion of existing barn/ apartment into single family residence
Sugar Grove, NC


The Cottage at Laurel Creek Road Renovation is to convert an existing apartment into a 3- bedroom single family residence. The property is located along Laurel Creek 30 minutes from Boone, NC and 1/4 mile from the Watauga River. The existing neighborhood is scattered residential sprinkled in the mountain setting. The neighborhood is an eclectic mix of house types built between 1900 and 1970. The house sets on 3.4 acres fronted by a stream and backed by mountains.


Year
2024
Name
Cottage at Laurel Creek
Location
Sugar Grove, NC

The cottage was a barn originally, built date unknown but neighbors who have lived here for 80 years say, "I remember the barn when I was kid growing up here". There was a bad attempt at a renovation into an apartment and no work had been done in 40 years. The design concept is to maintain the historic form of the barn so prevalent in the high country with a shed roof off one side. You can see this archetype everywhere in these mountains. But the concept was to redefine and present a new interpretation of this utilitarian form. Additionally, a new porch and entry facing the stream was added as well as a fully accessible ramp into the cottage. The interior is designed to be fully ADA accessible affording a person with disabilities full access to a mountain structure.

The entire cottage had to be rebuilt due to mold and water damage and the misstep in structure. We installed a new roof and recycled the old roof as upper structure siding. We also tried to maintain and clean as much interior wood as possible since the timbers were cut from trees on site and milled just 5 miles away.

The facade, wrapping porch, huge picture window allowing a vista of the stream, and interior spaces are layered pieces with an undulating ceiling inspired by the water and the work of Palladio, Scarpa, Aalto and the work of the late architect genius Louis Kahn. Additionally, as with all my work, the work draws on the theoretical milestone article written by Sir Colin Rowe and Robert Slutsky on phenomenal transparency.

Laurel Creek Cottage

The Process

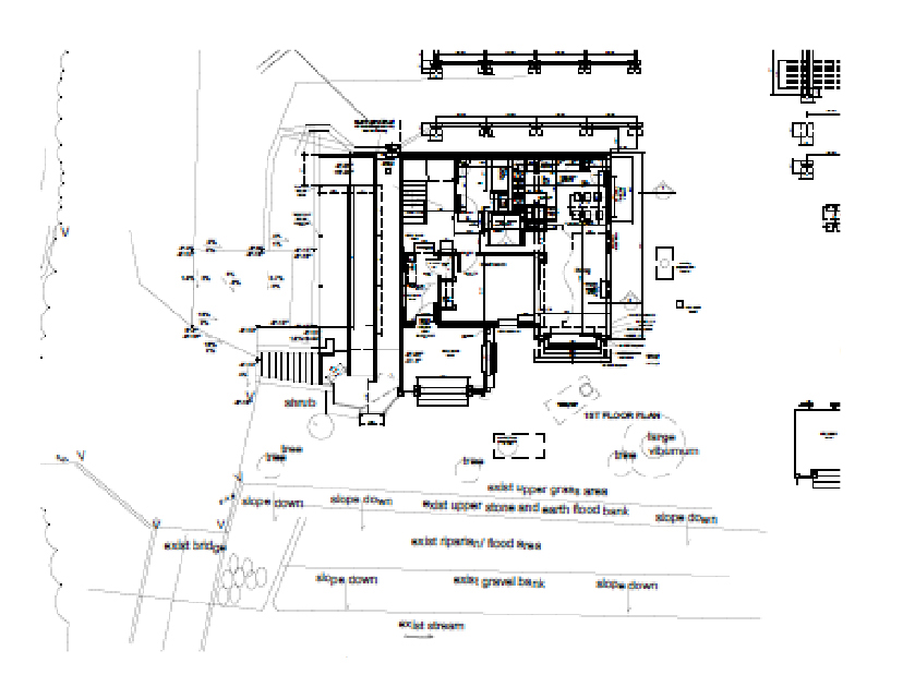
Laurel Creek Cottage

Site plan showing improvements

Laurel Creek Cottage

New Elevation

Laurel Creek Cottage

Existing

Laurel Creek Cottage

Existing New - In Progress

Laurel Creek Cottage

Existing

Laurel Creek Cottage

New - In Progress

Laurel Creek Cottage

Existing Structure Prior to Beginning Work

Laurel Creek Cottage

New - In Progress

Laurel Creek Cottage

Existing structure prior to beginning work

Laurel Creek Cottage

New - In Progress

Laurel Creek Cottage

New - In Progress

Laurel Creek Cottage

New - In Progress

Laurel Creek Cottage

New - In Progress

Laurel Creek Cottage

Interior Living Room

Contact Us
Let's discuss your project

Fill out the form and our manager will contact you for consultation.