316 Wendover Single Family residence
Renovation/ New Construction
March 2006 Completion Date
Conversion of existing duplex into single family residence
Sugar Grove, NC


The Wendover Renovation is to convert a 1940's duplex into a 4-bedroom single family residence. The property is located inside the old Louisville city limits inside 5 miles from the center city and less than 3/4 mile from 2 Olmstead designed parks. The existing neighborhood is primarily residential but is developing small private shops and ethnic groceries all within walking distance of the dwelling. The neighborhood is an eclectic mix of house types built between 1920 and 1940.


Year
2006
Name
Wendover Single Family residence
Location
Louisville, KY

The design concept is to construct the carriage house over a garage and the breezeway connecting the house but to use these elements as a buffer to create a private yard area. The existing duplex had 8' ceilings and so we dropped the floor area in the library and the family room to gain ceiling height and create a hierarch of spaces. A front porch is added to address the one street side and a screened porch to address the other. The new renovation is seen as a three-dimensional piece to experience while moving around the corner lot. The facades, wrapping porches, and interior spaces are layered pieces inspired by the work of Palladio, Scarpa, Aalto and the work of the late architect genius Louis Kahn. Additionally, the work draws on the theoretical milestone article written by Sir Colin Rowe and Robert Slutsky on phenomenal transparency.

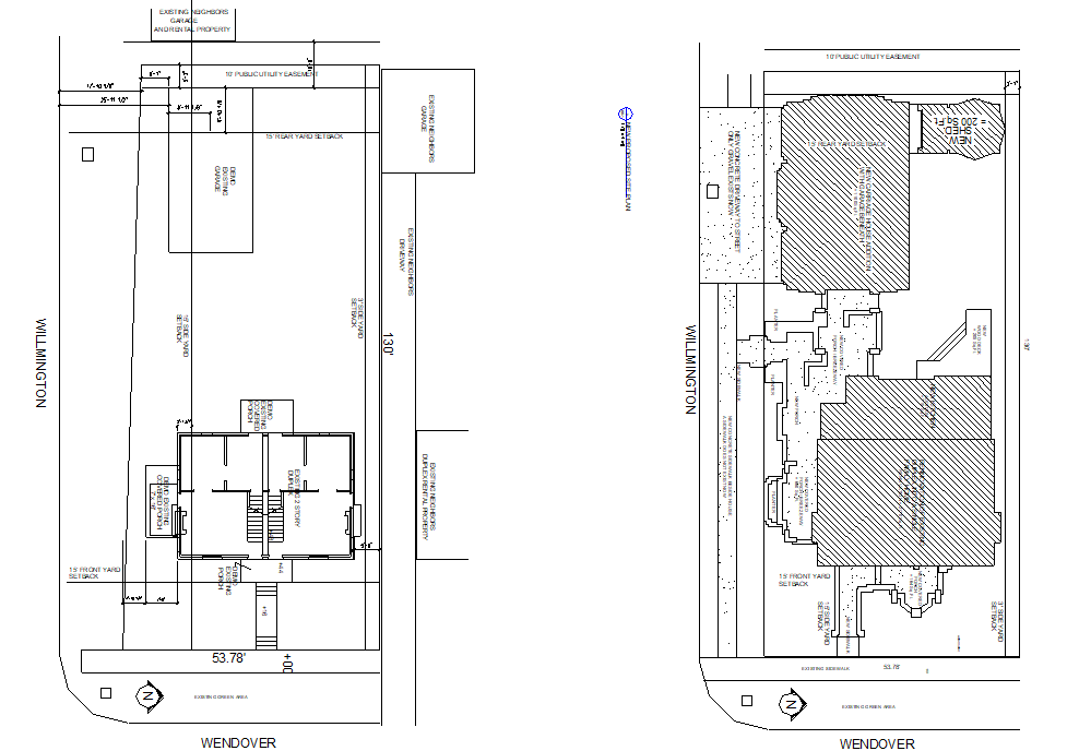
Wendover Single Family residence

Site plan on the left showing existing conditions and Site plan on the right showing proposed site plan after renovation

Wendover Single Family residence

New Floor Plan

Wendover Single Family residence

New Floor Plan

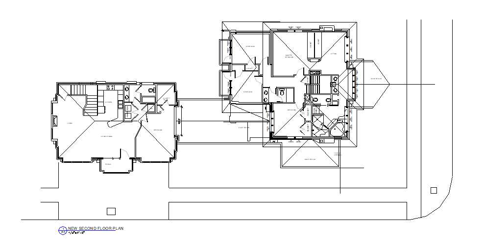
Wendover Single Family residence

New Floor Plan

Wendover Single Family residence

Existing duplex prior to beginning work

Wendover Single Family residence

House after demolition in renovation progress

Wendover Single Family residence

Existing duplex prior to beginning work

Wendover Single Family residence

House after demolition in renovation progress

Wendover Single Family residence

Completed Project

Contact info
Contact Us
568 Laurel Creek Road Sugar Grove, NC 28679
Phone: +1 502 639 2052
m.wright@oracledesign.net
Contact form